
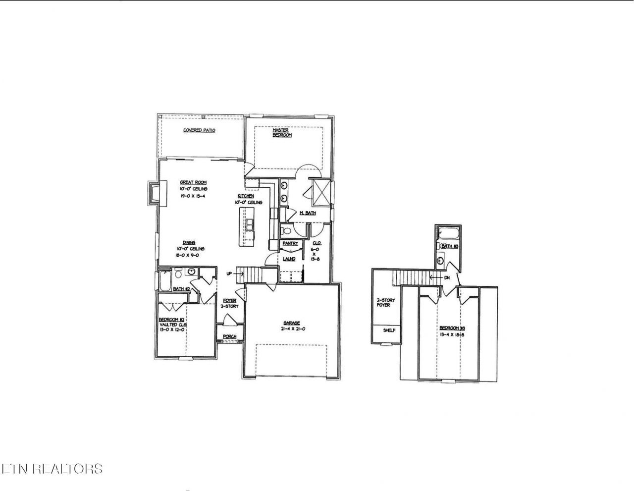
This home is under construction and estimated completion is Apr/May 2026. Quality all brick/stone home by one of Knoxville's best builders. This Prestwick II model home offers a very open floor plan w/ Primary bedroom and BR-2 on main, bright kitchen w/ quartz countertops - stainless appliances - under cabinet lighting & tile backsplash opens into dining area and great room w/ gas logs stone fireplace. This area is one large open space w/ 10-ft ceilings & impressive glass slider doors opening onto covered patio, MBR on main w/ 10-ft -trey ceiling and posh bath (tile shower - double vanity w/ granite top & walk-in closet), BR-2 on main w/ cathedral ceiling and full bath, bonus room or bedroom 3 up w/ full bath and walk-in storage, covered patio w/ stained tongue & groove ceiling, rich moldings, hardwood and tile floors, security system, rough-in central vac, tankless gas water heater, sodded yard, irrigation. Additional info at www.Foxboroughhills.com
Listed By
Agency Name: Volunteer Realty
Shown By
Agency Title: Crye-Leike Real Estate Services
Agency Phone: 866-253-4666
Estimated Payment
$ 1,660.12 per month $1,467.76 Principal & Interest $0.00 Property Tax (data not provided by mls) $192.35 Homeowner's Insurance
9981 Rio Bravo Lane | MLS# 1317118
This single family home located at 9981 Rio Bravo Lane, Knoxville, TN 37922 is currently listed for sale with an asking price of $659,500. This property has 3 bedrooms and 3 full baths with 2125 sq. ft. Rio Bravo Lane is located in the Foxborough subdivision. Search Foxborough real estate on www.clcommercialrealestate.com today.