
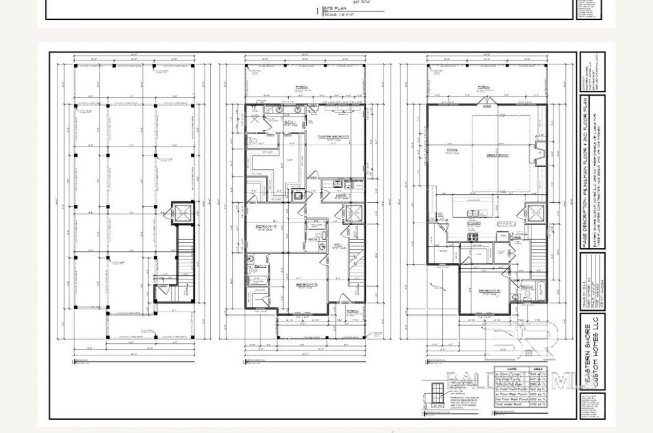
Currently under construction by ARK Builders, this Gold Fortified waterfront residence is designed for those who appreciate elevated craftsmanship and modern coastal luxury. With an expected completion in April 2026, every detail of this 2,982-square-foot home reflects thoughtful design and high-end finishes throughout. The home features four bedrooms and four full baths, with the primary suite, bedrooms two and three, and a well-appointed laundry room with cast iron sink located on the second level. The primary suite includes a spacious 10x30 private balcony overlooking the waterway, dual vanities, linen cabinet, water closet, and a custom walk-in closet with built-in dressers. The top level showcases an open kitchen, dining, and great room layout. The chef's kitchen is outfitted with a 48-inch commercial-grade gas range, quartz countertops, a walk-in pantry with custom cabinetry, and an elevated design that blends function with sophistication. Additional features include 10-foot ceilings, 8-foot doors, hardwood flooring throughout the main living spaces, and tile in baths and laundry. Each upper level spans the width of the home with fully tiled waterside decks, offering seamless indoor-outdoor flow. Luxe plumbing fixtures, designer lighting, impact windows, a gas tankless water heater, and elevator access to both upper floors complete this home's exceptional offering. The property has a boat dock with water and power with up to 30' boat lift as well as a whole home generator. There is an inground gunite saltwater pool and fence around the back of the home. Every space has been crafted with precision and an uncompromising attention to detail, setting a new standard for modern waterfront living in Gulf Shores. Listing agent is a licensed real estate agent in the state of Alabama and is a member of the selling entity. Buyer to verify all information during due diligence.
Listed By
Agency Name: Bellator Real Estate, LLC Fair
Agency Phone: 251-990-8838
Shown By
Agency Title: Crye-Leike Real Estate Services
Agency Phone: 866-253-4666
Estimated Payment
$ 6,041.36 per month $5,341.36 Principal & Interest $0.00 Property Tax (data not provided by mls) $700.00 Homeowner's Insurance
808 W Canal Drive | MLS# 389263
This single family home located at 808 W Canal Drive, Gulf Shores, AL 36542 is currently listed for sale with an asking price of $2,400,000. This property was built in 2026 and has 4 bedrooms and 4 full baths with 2982 sq. ft. W Canal Drive is located in the Gulf Shores subdivision. Search Gulf Shores real estate on www.clcommercialrealestate.com today.