
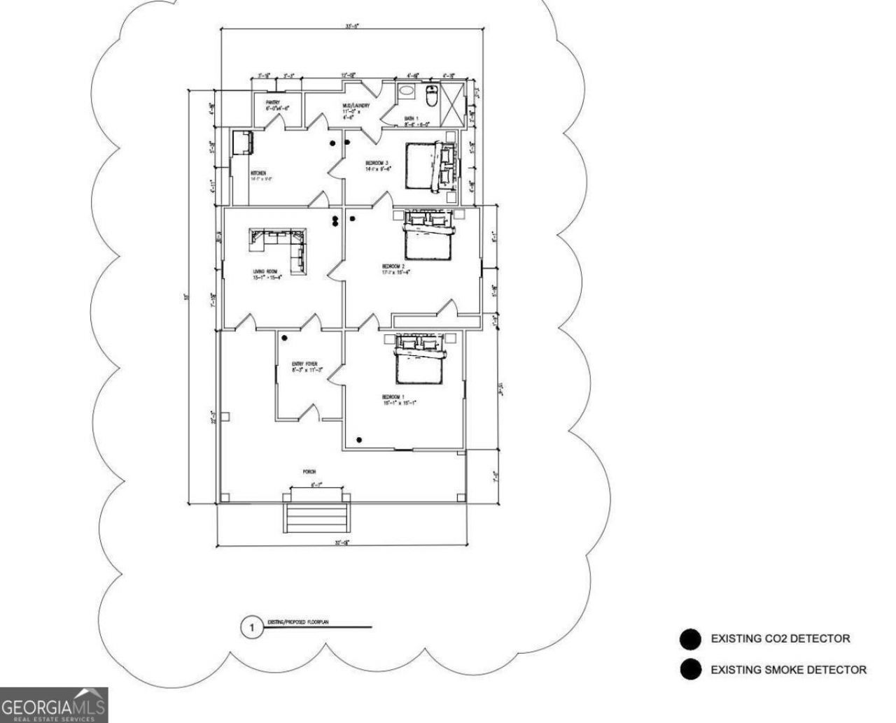
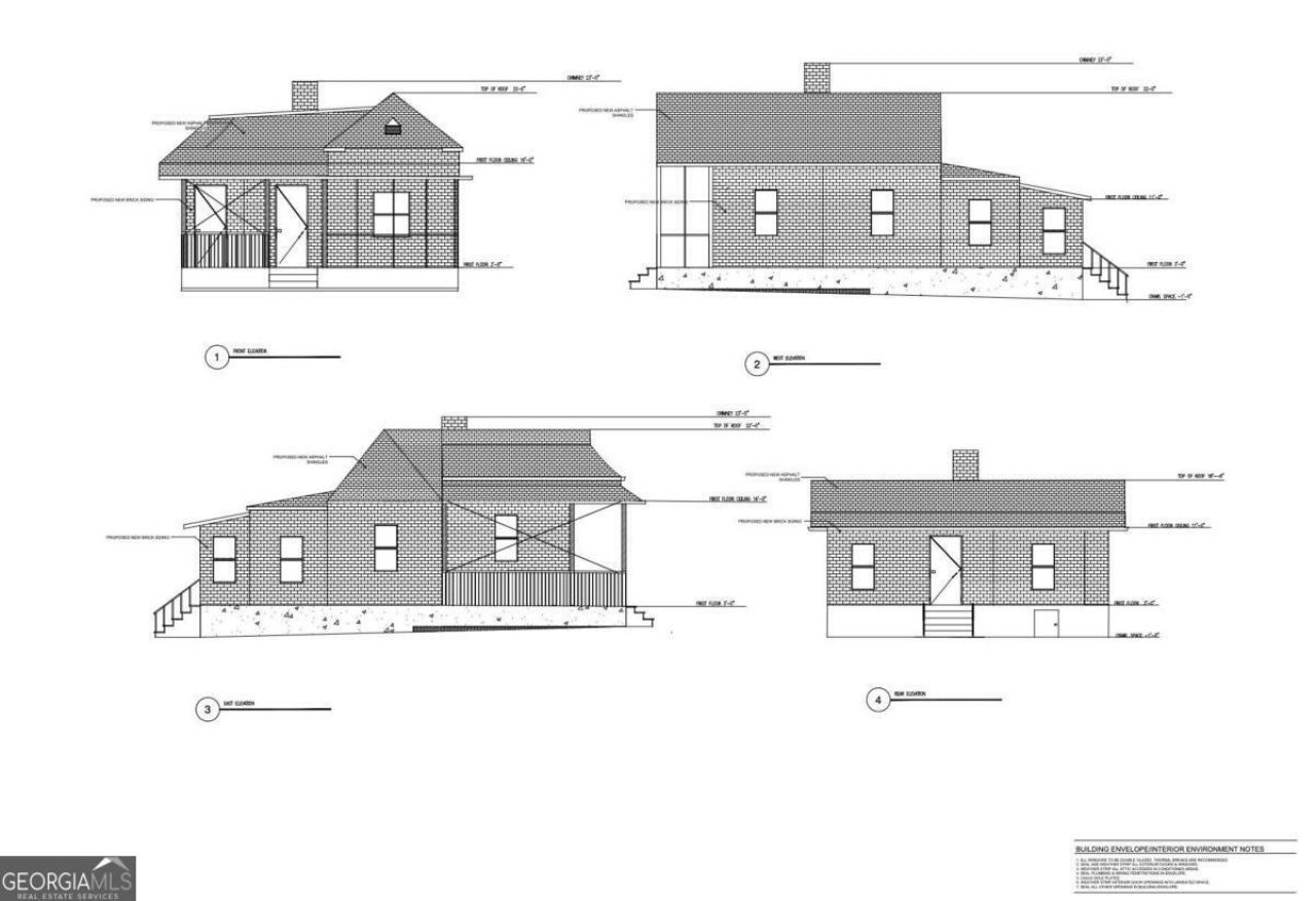
Rare opportunity to step into a renovation project with the hard work already done. This property is being sold with approved plans, completed survey, and active permits, allowing the next owner to begin construction immediately and skip months of design and approval timelines. The plans envision a beautiful transformation that enhances the character of the home while bringing it into modern living standards. For investors, builders, or visionaries looking for their next project, this property provides a clear path to create something truly special. Located in an area experiencing strong revitalization, the potential here is significant. With the planning and preparation already completed, the next owner simply needs to execute the vision and bring the project to life. Plans, survey, and permit documentation will be transferred with the sale. Property sold As-Is.
Listed By
Agency Name: Epique Realty
Agency Phone: 888-893-3537
Shown By
Agency Title: Crye-Leike Real Estate Services
Agency Phone: 866-253-4666
Estimated Payment
$ 613.27 per month $389.47 Principal & Interest $172.75 Property Tax $51.04 Homeowner's Insurance
770 Cooper Street Sw | MLS# 10711411
This single family home located at 770 Cooper Street Sw, Atlanta, GA 30315 is currently listed for sale with an asking price of $175,000. This property was built in 1920 and has 3 bedrooms and 2 full baths. Cooper Street Sw is located in the Mechanicsville subdivision. Search Mechanicsville real estate on www.clcommercialrealestate.com today.