
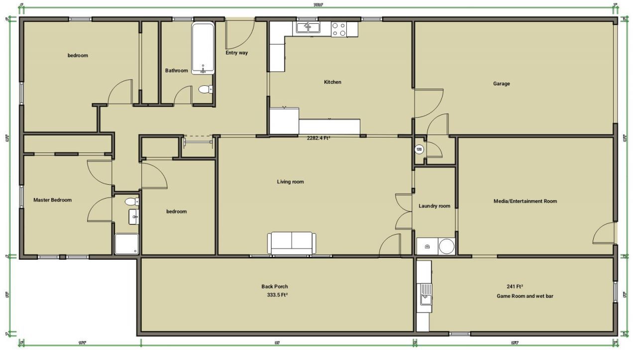
Check out this beautiful home situated on over an acre of land, conveniently located near downtown Laurel while still offering an urban feel. Step inside to a spacious kitchen featuring a breakfast nook and bar-top seating that overlooks the open living room--perfect for both everyday living and entertaining.The home also offers a fully finished media room with wiring already in place, along with an additional flex room just off the media space complete with a wet bar. For outdoor entertaining, enjoy the large covered back deck overlooking the fenced backyard, ideal for gatherings and cozy bonfire nights.
Listed By
Agency Name: Luxury Southern Realty
Agency Phone: (601) 909-6940
Shown By
Agency Title: Crye-Leike Real Estate Services
Agency Phone: 866-253-4666
Estimated Payment
$ 616.72 per month $545.26 Principal & Interest $0.00 Property Tax (data not provided by mls) $71.46 Homeowner's Insurance
67 College Dr. | MLS# 145762
This single family home located at 67 College Dr., Laurel, MS 39440 is currently listed for sale with an asking price of $245,000. This property was built in 1965 and has 3 bedrooms with 1870 sq. ft. College Dr. is located within the Laurel school district. Search Laurel real estate on www.clcommercialrealestate.com today.