
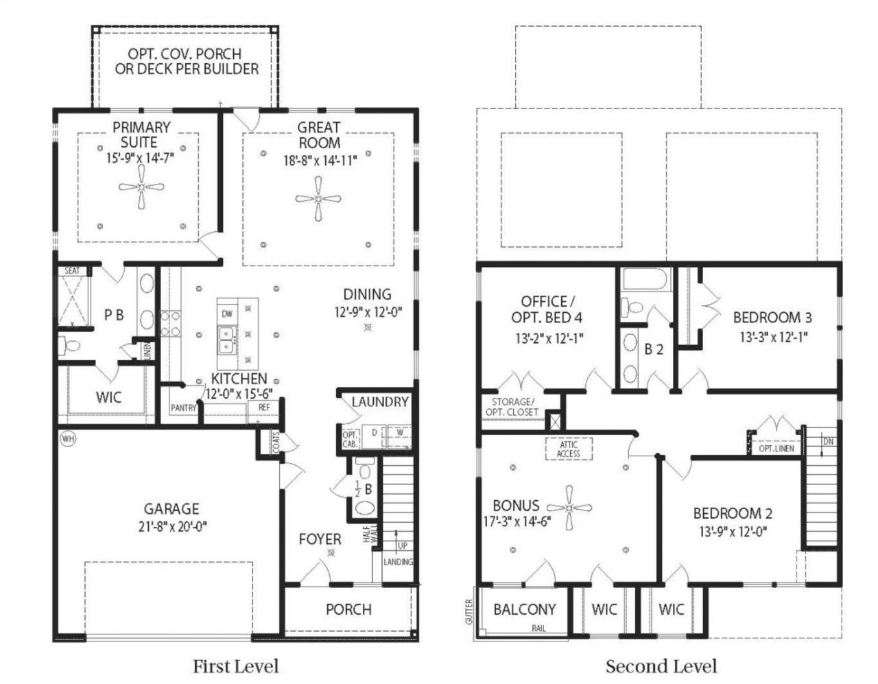
Just released, est completion - July/August. New floor plan being offered by one of the Top 10, 2024 Local homebuilders on one of the remaining premium lots with privacy. 4 bedroom plan, 9 ft ceilings with 10 ft treys with the master on the first floor, 7 ft quartz island, open living room. large bonus & balcony, Large secondary bedrooms, walk in closets. Buyers pick colors and selections based on time of contract. What your home is made of matters, proudly constructed with premium LP subflooring, Tech shield, James Hardie siding, high rated shingles with first owner lifetime warranty, delta fixtures & other quality materials. Within a new walkable community with incoming walking trails, existing playground, splash pad. Low HOA. Smyrna city limits. 1 mile to schools & Cedar Stone Park, 3 miles to i24 & easy access to 840. Easy offer process, Seller is offering incentives regardless of financing. Preferred lenders will provide additional assistance if used. Site is still under construction, block stage, similar model available to view. call or text to schedule a showing
Listed By
Agency Name: Regent Realty
Agency Phone: 6153339000
Shown By
Agency Title: Crye-Leike Real Estate Services
Agency Phone: 866-253-4666
Estimated Payment
$ 1,638.62 per month $1,159.35 Principal & Interest $327.33 Property Tax $151.94 Homeowner's Insurance
6305 Loudwater Court | MLS# 3123020
This single family home located at 6305 Loudwater Court, Smyrna, TN 37167 is currently listed for sale with an asking price of $520,925. This property was built in 2026 and has 4 bedrooms and 2 full and 1 partial baths with 2444 sq. ft. Loudwater Court is located in the Blakeney Sec 3 Ph 1 subdivision. Search Blakeney Sec 3 Ph 1 real estate on www.clcommercialrealestate.com today.