
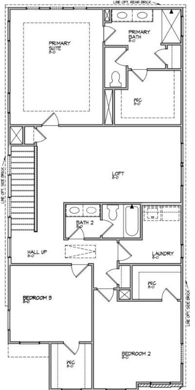
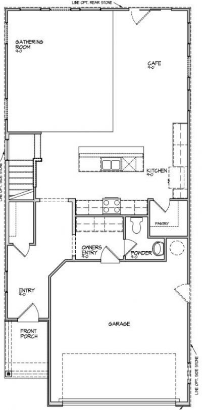
The Juniper Floor Plan is a thoughtfully designed two-story home that offers a smart balance of functionality, comfort, and modern style. With three bedrooms and two and a half bathrooms, this home is ideal for families or homeowners who value well-defined living spaces paired with open, inviting areas for gathering and entertaining.All bedrooms are conveniently located on the upper level, creating a private retreat separate from the main living areas. The primary suite is spacious and welcoming, featuring a large walk-in closet and a well-appointed en-suite bathroom designed for relaxation and everyday comfort. Two additional bedrooms provide flexibility for family members, guests, or a home office, while a versatile loft area adds valuable extra living space-perfect for a media room, play area, homework station, or second family lounge. A convenient upstairs laundry room enhances daily efficiency by keeping chores close to the bedrooms.The main level is designed for both comfort and practicality. A welcoming owner's entry creates an organized transition space, complete with a storage closet for coats, shoes, and everyday essentials. The heart of the home is the large, open kitchen, offering generous counter space, abundant cabinetry, and a layout that flows seamlessly into the expansive gathering room and caf? area. This open-concept design creates a warm, connected environment ideal for entertaining guests, hosting family meals, or enjoying relaxed evenings at home.Thoughtful storage solutions throughout the home support organization and ease of living, while the separation of living and sleeping spaces enhances privacy. With its flexible layout, modern design, and family-friendly flow, the Juniper Floor Plan delivers everyday comfort and long-term livability in a home that adapts to your lifestyle. Now is the time to act! Incentives are at $10,000 with preferred lender.
Listed By
Agency Name: DRB Group Tennessee
Agency Phone: 6159881517
Shown By
Agency Title: Crye-Leike Real Estate Services
Agency Phone: 866-253-4666
Estimated Payment
$ 1,167.27 per month $928.28 Principal & Interest $117.33 Property Tax $121.65 Homeowner's Insurance
600 Sun Bear Ln | MLS# 3129141
This single family home located at 600 Sun Bear Ln, Mount Pleasant, TN 38474 is currently listed for sale with an asking price of $417,099. This property was built in 2026 and has 3 bedrooms and 2 full and 1 partial baths with 2343 sq. ft. Sun Bear Ln is located in the Cottages of Bearwood subdivision. Search Cottages Of Bearwood real estate on www.clcommercialrealestate.com today.