
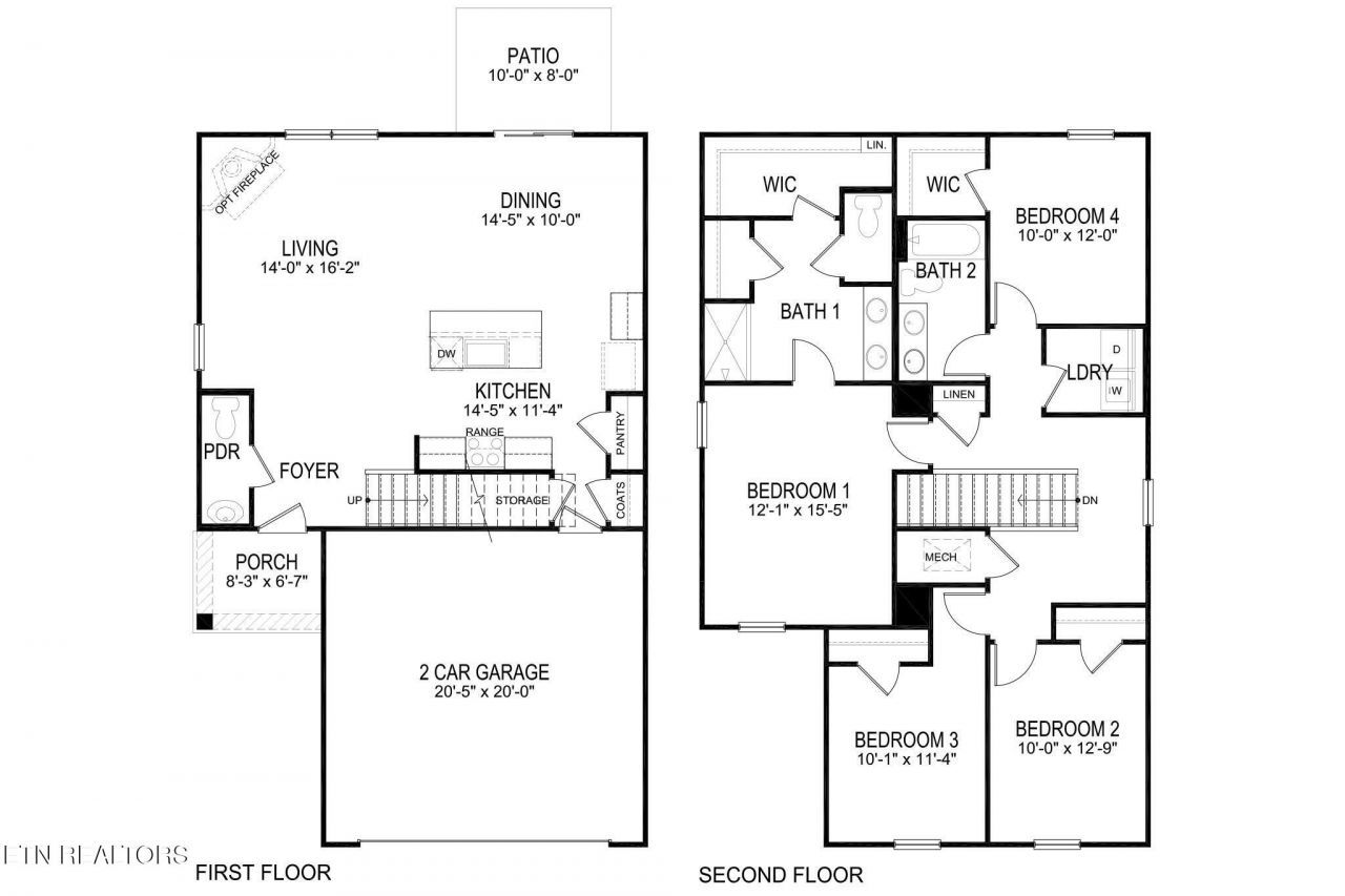
Welcome to 5732 Painted Shoals Lane at Price's Point in South Knoxville, TN. The exterior of the home features a steel blue color palette with deep brown tonal brick accents. Inside, white cabinetry, gray speckle granite, and stainless-steel appliances provide a polished, modern finish. This thoughtfully designed two-story home offers 1,927 square feet of modern living space with 4 bedrooms and 3 full bathrooms, perfect for anyone seeking both comfort and functionality.A welcoming entryway leads into a spacious great room. The dining area seamlessly connects to a contemporary kitchen which features a large island and abundant storage, ideal for everyday living or entertaining guests.Upstairs, the private primary suite includes a walk-in closet and a spa-inspired bathroom with dual vanities. Three additional bedrooms offer flexibility for guests, or a home office. Enjoy the outdoors on the rear patio and take advantage of the two-car garage that provides plenty of extra storage. This home also has 9ft ceilings on first floor, gas fireplace, Moen nickel plumbing fixtures with anti-scald shower valves, Mohawk Revwood LVP and carpet flooring, LED lighting throughout, upgraded lifetime architectural shingles, concrete rear patio, & our Home Is Connected Smart Home Package. Seller offering closing cost assistance to qualified buyers. Builder warranty included. See agent for details. Due to variations amongst computer monitors, actual colors may vary. Pictures, photographs, colors, features, and sizes are for illustration purposes only and will vary from the homes as built. Photos may include digital staging. Square footage and dimensions are approximate. Buyer should conduct his or her own investigation of the present and future availability of school districts and school assignments. *Taxes are estimated. Buyer to verify all information.
Listed By
Agency Name: D.R. Horton
Shown By
Agency Title: Crye-Leike Real Estate Services
Agency Phone: 866-253-4666
Estimated Payment
$ 881.95 per month $779.76 Principal & Interest $0.00 Property Tax (data not provided by mls) $102.19 Homeowner's Insurance
5732 Painted Shoals Lane | MLS# 1328066
This single family home located at 5732 Painted Shoals Lane, Knoxville, TN 37920 is currently listed for sale with an asking price of $350,365. This property has 4 bedrooms and 2 full and 1 partial baths with 1927 sq. ft. Painted Shoals Lane is located in the Price's Point subdivision. Search Price's Point real estate on www.clcommercialrealestate.com today.