
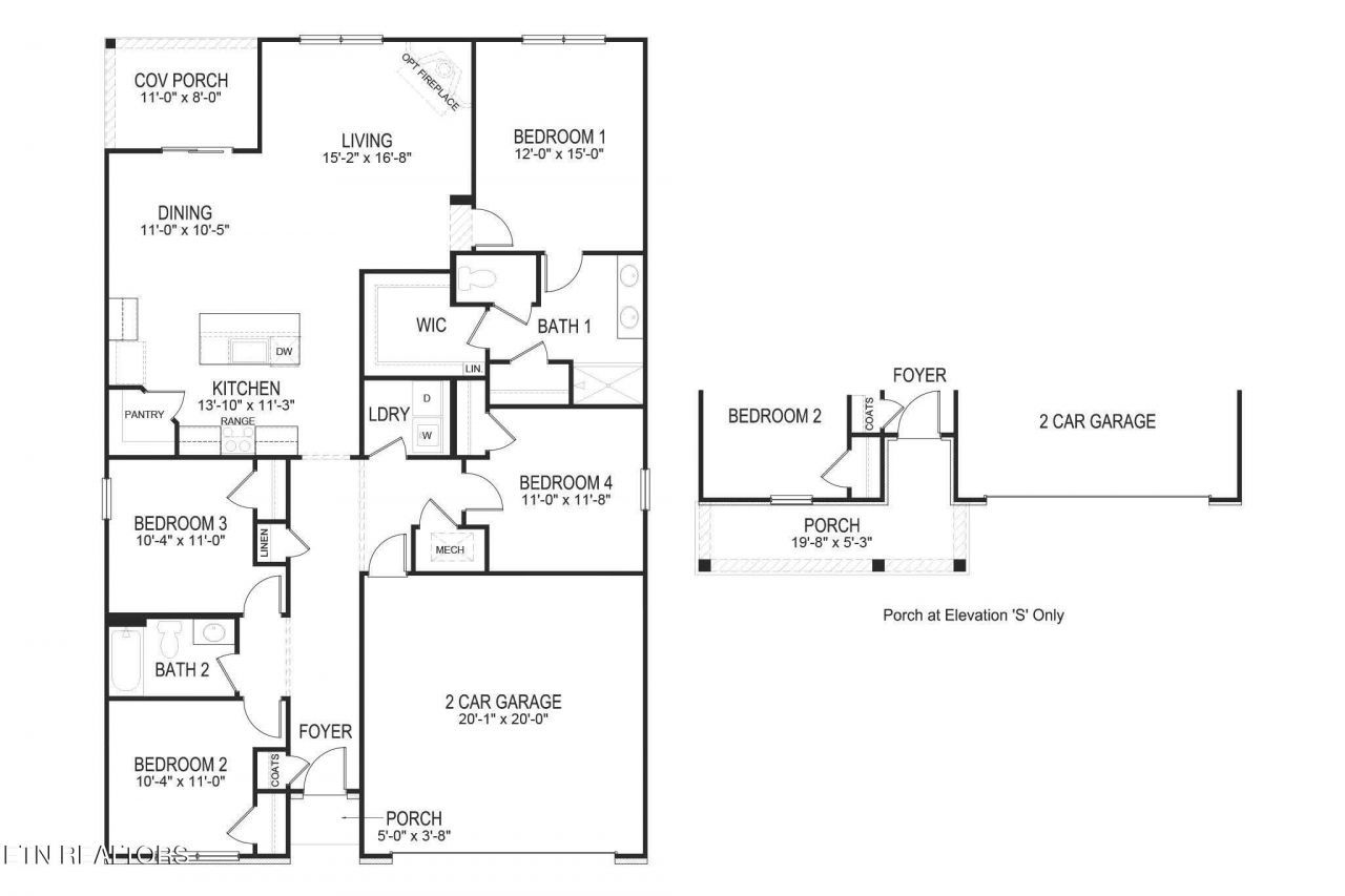
Come home to 502 Villages at Hinds Creek Ln at Mary's Pointe in Clinton, TN. The exterior of the home will feature a brown color palette with tonal brick accents. This single-story home offers 1,774 square feet with 4 bedrooms and 2 bathrooms, combining comfort with an open, functional layout.At the heart of the home, the open-concept kitchen overlooks the dining and living areas, creating an ideal space for entertaining or relaxing. A large kitchen island provides additional seating and prep space, while a roomy pantry adds convenient storage. You'll also find shaker-style cabinetry, granite countertops, and stainless-steel appliances providing a polished, modern finish. Sliding doors open to a covered patio, extending your living space outdoors.The private primary suite is tucked away at the back of the home and features a spacious walk-in closet and bathroom. There are three additional bedrooms, two near the front of the home and one across the hall offers flexibility for guests or a home office, along with a second full bathroom.This home also has 9ft ceilings on first floor, gas fireplace, Moen nickel plumbing fixtures with anti-scald shower valves, Mohawk Revwood vinyl and carpet flooring, LED lighting throughout, upgraded lifetime architectural shingles, concrete rear patio, & our Home Is Connected Smart Home Package. Seller offering closing cost assistance to qualified buyers. Builder warranty included. See agent for details. Due to variations amongst computer monitors, actual colors may vary. Pictures, photographs, colors, features, and sizes are for illustration purposes only and will vary from the homes as built. Photos may include digital staging. Square footage and dimensions are approximate. Buyer should conduct his or her own investigation of the present and future availability of school districts and school assignments. *Taxes are estimated. Buyer to verify all information.
Listed By
Agency Name: D.R. Horton
Shown By
Agency Title: Crye-Leike Real Estate Services
Agency Phone: 866-253-4666
Estimated Payment
$ 969.74 per month $857.38 Principal & Interest $0.00 Property Tax (data not provided by mls) $112.36 Homeowner's Insurance
502 Villages At Hinds Creek Ln | MLS# 1330288
This single family home located at 502 Villages At Hinds Creek Ln, Clinton, TN 37716 is currently listed for sale with an asking price of $385,240. This property has 4 bedrooms and 2 full baths with 1774 sq. ft. Villages At Hinds Creek Ln is located in the Mary's Pointe subdivision. Search Mary's Pointe real estate on www.clcommercialrealestate.com today.