
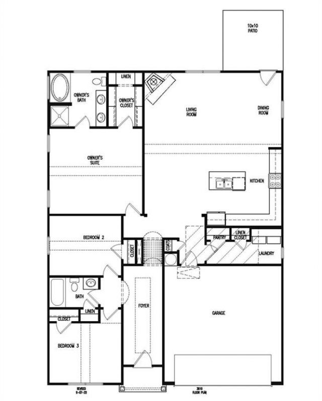
Lot 126 - USDA eligible! Plan 3910 showcases a beautiful Craftsman-style exterior with a front elevation featuring brick, Hardiplank, and board-and-batten accents. This single-story home offers 3 bedrooms, 2 bathrooms, a 2-car garage, smooth ceilings throughout, and 9' first-floor ceilings. Enjoy convenient one-level living with a spacious family room with a cozy fireplace, a dining area, and a large kitchen equipped with granite countertops, a kitchen island, and stainless-steel appliances. The generous primary suite features a dual-sink vanity, garden tub, separate shower, and a large walk-in closet. Two additional large bedrooms and a full bath complete the main floor. The builder is offering added features at no extra cost to the buyer: blinds, window screens, a glass shower door in the owner's suite, and a garage door opener. Home is now under construction and is 60 days to completion! Interior home pictures are example of home to be built.
Listed By
Agency Name: Clover Realty
Agency Phone: 678-383-5004
Shown By
Agency Title: Crye-Leike Real Estate Services
Agency Phone: 866-253-4666
Estimated Payment
$ 1,153.70 per month $725.31 Principal & Interest $333.33 Property Tax $95.05 Homeowner's Insurance
495 Charleston Place | MLS# 7745908
This single family home located at 495 Charleston Place, Villa Rica, GA 30180 is currently listed for sale with an asking price of $325,900. This property was built in 2026 and has 3 bedrooms and 2 full baths. Charleston Place is located in the The Trails at Charleston Place subdivision within the Ithica - Villa Rica school district. Search The Trails At Charleston Place real estate on www.clcommercialrealestate.com today.