
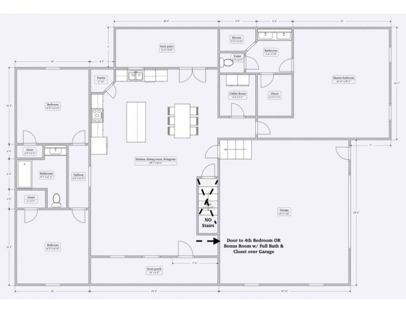
This stunning new construction home built by Bison Developments is ONE LEVEL LIVING! Featuring 2 primary suites with option to use 4th bedroom as bonus room w/ full bath including tile shower and walk in closet. Vaulted ceilings in great room, large kitchen with walk in pantry, oversized island, quartz countertops, hand selected finishes, 2 car side entry garage, covered front and back patios with separate large utility room. This is an amazing floor plan layout. ** Completion approx. March - April 2026 or Before / Issued street address number 447
Listed By
Agency Name: Benchmark Realty, LLC
Agency Phone: 6152888292
Shown By
Agency Title: Crye-Leike Real Estate Services
Agency Phone: 866-253-4666
Estimated Payment
$ 1,523.32 per month $1,333.11 Principal & Interest $15.50 Property Tax $174.71 Homeowner's Insurance
447 Bridle Path | MLS# 3037584
This single family home located at 447 Bridle Path, Hartsville, TN 37074 is currently listed for sale with an asking price of $599,000. This property was built in 2025 and has 4 bedrooms and 3 full baths with 2402 sq. ft. Bridle Path is located in the Bridle Path subdivision. Search Bridle Path real estate on www.clcommercialrealestate.com today.