
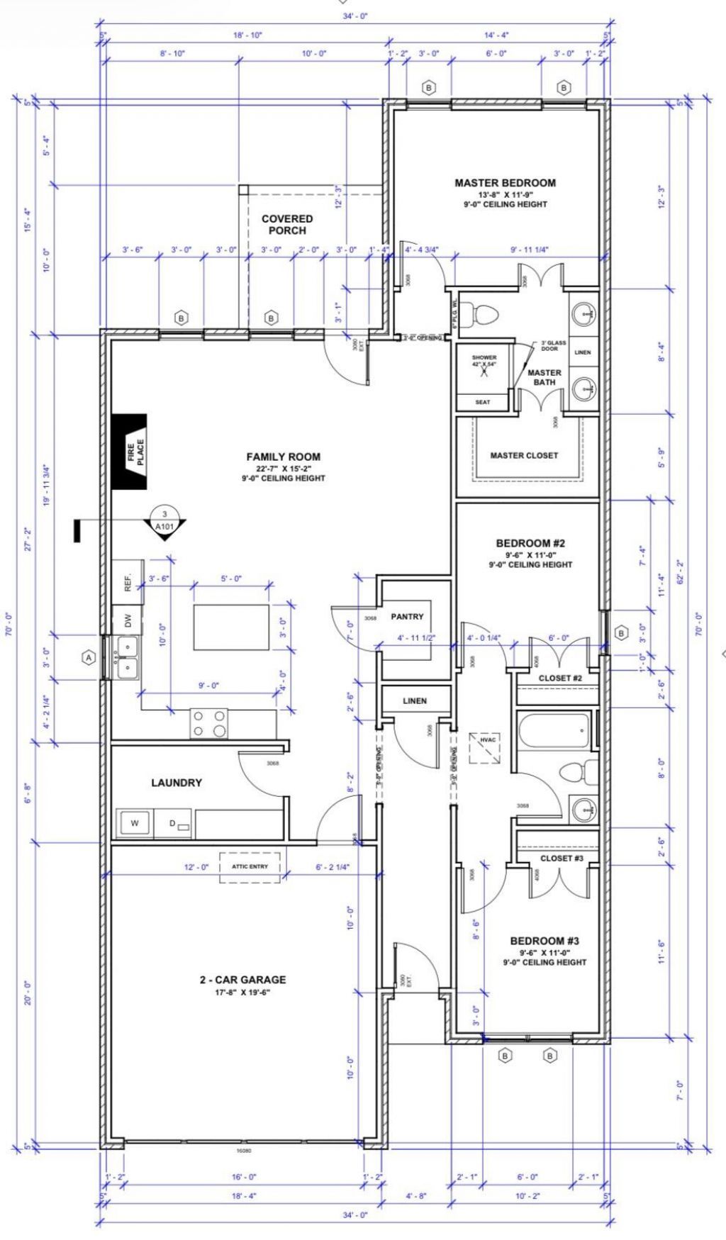
New construction in the Villages community of West Tupelo. This thoughtfully designed 3-bedroom, 2-bath home offers approximately 1,600 square feet of refined living space in a beautifully maintained setting with a scenic lake and walking trails. The open-concept layout is ideal for both comfortable everyday living and entertaining, with quality finishes planned throughout. A gas fireplace anchors the main living area, adding warmth and character, while the split-bedroom floor plan provides privacy. The primary suite is designed as a relaxing retreat. Construction is underway-an excellent opportunity to secure a brand-new home in one of West Tupelo's most desirable communities. Seller is a licensed MS Real Estate agent. All info subject to verification.
Listed By
Agency Name: TM REALTORS
Agency Phone: (662) 842-3844
Shown By
Agency Title: Crye-Leike Real Estate Services
Agency Phone: 866-253-4666
Estimated Payment
$ 1,166.93 per month $723.31 Principal & Interest $348.83 Property Tax $94.79 Homeowner's Insurance
4260 Sydney | MLS# 26-439
This single family home located at 4260 Sydney, Tupelo, MS 38801 is currently listed for sale with an asking price of $325,000. This property was built in 2026 and has 3 bedrooms and 2 full baths with 1600 sq. ft. Sydney is located in the The Villages subdivision within the Tupelo Public School school district. Search The Villages real estate on www.clcommercialrealestate.com today.