
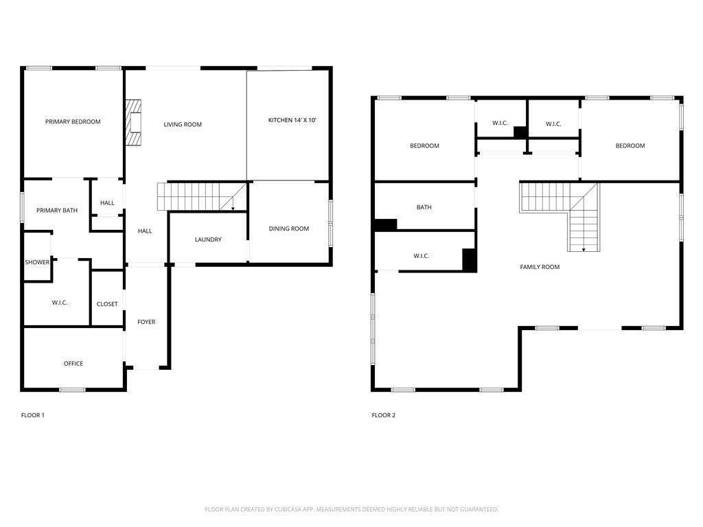
Seller to pay up to $5k towards Buyers Closing Costs & Prepaids AND provide a washer, dryer, and stainless steel refrigerator with full price offer. New construction home in the Bella Vista area. Sodded front yard, seed & straw on the side & backyard. 3 bedrooms / 2.5 baths. Stainless Steel appliances. Kitchen has 2cm quartz and marble backsplash along with a stainless steel gas/propane cooktop and oven, a microvent, and dishwasher. Living room has a gas/propane fireplace with tile surround. Ceiling fans throughout. Primary bedroom has bathroom suite with a separate free-standing tub and tiled oversize shower, dual vanity sinks, and 2 cm quartz countertops. Disc lights, ceiling fans, and 2 faux wood blinds throughout the home. Spacious 2 car garage. Owner is related to a realtor. Owner is related to the builder. Builder is a licensed real estate agent with Grandview Realty, LLC. Taxes are based on the land only and will increase when re-assessed.
Listed By
Agency Name: Grandview Realty
Shown By
Agency Title: Crye-Leike Real Estate Services
Agency Phone: 866-253-4666
Estimated Payment
$ 1,505.10 per month $1,330.71 Principal & Interest $0.00 Property Tax (data not provided by mls) $174.39 Homeowner's Insurance
4 Ampthill Lane | MLS# 1325873
This single family home located at 4 Ampthill Lane, Bella Vista, AR 72714 is currently listed for sale with an asking price of $597,919. This property was built in 2025 and has 3 bedrooms and 2 full and 1 partial baths with 2611 sq. ft. Ampthill Lane is located in the BEDFORD subdivision within the Bentonville school district. Search BEDFORD real estate on www.clcommercialrealestate.com today.