
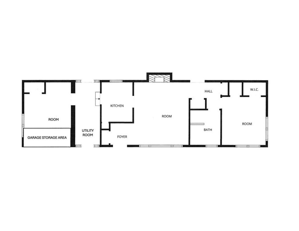
Opportunity awaits in historic Downtown Springdale! This property offers an open area suitable for reception, retail, or flexible workspace, plus two private offices, one with a separate entrance. Features include a kitchen, full bathroom, laundry/mud room, and additional storage in the converted garage (not included in square footage), ideal for equipment, bikes, or inventory. A new roof provides added peace of mind. Zoned for office or retail use and conveniently located near the Razorback Greenway, post office, fire station, restaurants, shopping, service businesses, and nearby mixed-use developments. The efficient layout, desirable downtown location, and attractive size and price point make this a versatile opportunity. Buyer to verify intended use with the city. Per the Springdale Planning Director, residential use may continue under grandfathered status provided use is continuous, vacancy does not exceed six months, and no changes increase nonconformity. Buyer to verify with the city to their satisfaction.
Listed By
Agency Name: The Griffin Company Commercial Division-Springdale
Shown By
Agency Title: Crye-Leike Real Estate Services
Agency Phone: 866-253-4666
311 S Main Street | MLS# 1331419
This commercial property located at 311 S Main Street, Springdale, AR 72764 is currently listed for sale with an asking price of $299,762. Search Springdale real estate on www.clcommercialrealestate.com today.