
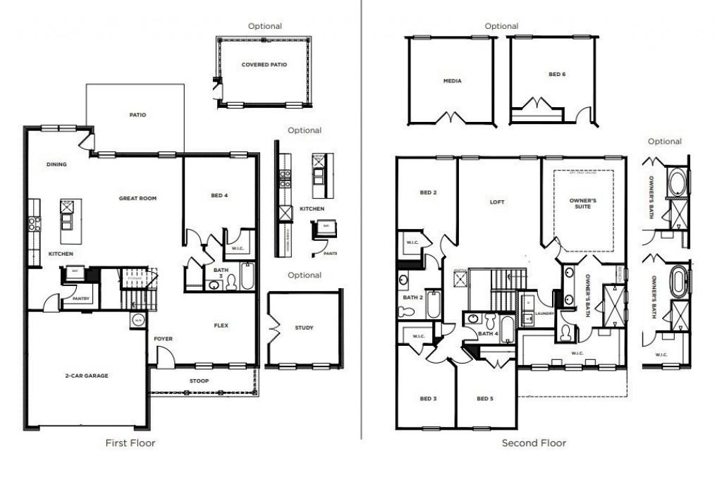
TO BE BUILT PRE-SALE: The Landing at Greens Mill, Columbia's most beautiful new community! Welcome to the Colburn floorplan, a spacious and thoughtfully designed 5-bedroom, 4-bath home offering exceptional flexibility and comfort. The main level features a downstairs flex space, with a study option available, along with a full bedroom and bathroom, making it ideal for guests or multi-generational living. Upstairs, you'll find the oversized owner's suite and three additional bedrooms, along with a versatile loft space. When building from the ground up, buyers may choose to add a 6th bedroom or a media room in lieu of the loft, allowing the home to adapt perfectly to changing needs. The heart of the home showcases open-concept living, highlighted by an electric fireplace and beam ceilings in the great room, creating a warm and inviting gathering space. Quartz countertops are included throughout the kitchen and all bathrooms, while ceramic tile flooring enhances all wet areas. The owner's suite is a true retreat, featuring beam ceilings, abundant natural light, an oversized walk-in closet, and a spa-inspired en suite bathroom with a walk-in tile shower, ceramic tile floors, and double vanities. Step outside to the large rear patio, perfect for relaxing or entertaining, with an optional covered patio available. With its flexible layout, upscale finishes, and thoughtfully designed spaces, the Colburn floorplan delivers both functionality and elevated style for modern living. **** For a limited time ONLY: Special interest rate available as low as 2.49% with preferred lender and title company. Terms and conditions apply. Call or text Kelleigh League (615) 767-6131 or Noble Cummings (615) 753-6818 for more information.
Listed By
Agency Name: The New Home Group, LLC
Agency Phone: 6154373798
Shown By
Agency Title: Crye-Leike Real Estate Services
Agency Phone: 866-253-4666
Estimated Payment
$ 1,661.02 per month $1,210.69 Principal & Interest $291.67 Property Tax $158.66 Homeowner's Insurance
2846 Bluestem Road | MLS# 3122953
This single family home located at 2846 Bluestem Road, Columbia, TN 38401 is currently listed for sale with an asking price of $543,990. This property was built in 2025 and has 5 bedrooms and 4 full baths with 2846 sq. ft. Bluestem Road is located in the The Landing at Greens Mill subdivision. Search The Landing At Greens Mill real estate on www.clcommercialrealestate.com today.