
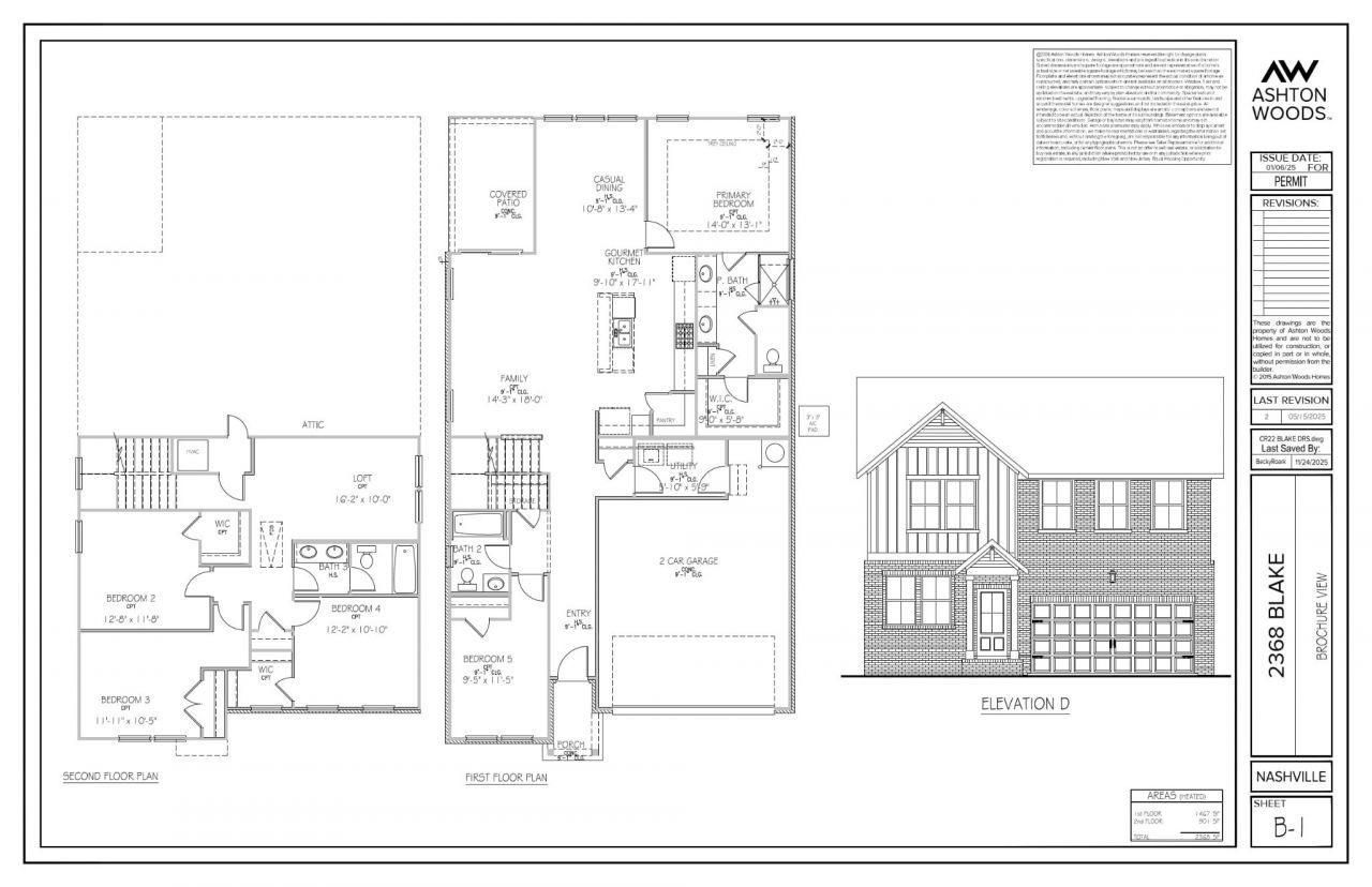
Lot 22- Designed with the 55+ lifestyle in mind, the Blake plan is one of the most unique offerings at Cedars of Cane Ridge. Designed for comfort and versatility, it features two bedrooms and two baths on the main floor, along with additional bonus space upstairs-perfect for entertaining or giving overnight guests their own private retreat. Built with longevity in mind, this home is constructed with 80% brick and Hardie board for low-maintenance living. Inside, a stunning gourmet kitchen awaits, complete with double ovens, a gas cooktop, and all kitchen appliances included. The designer-curated Harmony Collection elevates the space with gleaming white cabinetry, delicately veined quartz countertops, and an inviting island ideal for gathering. Brushed black hardware adds a stylish yet timeless touch. Enjoy peaceful outdoor living on the covered patio, which backs to a tranquil tree line. As the final home on a quiet dead-end street, this property offers exceptional privacy and serenity-an ideal place to call home. Located near Hwy 24 in the desirable submarket of Cane Ridge, boasting country-like surroundings, and close to daily conveniences. Easy access to major corridors like I-24 that connects to downtown Nashville and Nashville International Airport. Cane Ridge/Antioch boasts the newest Tanger Outlet Shopping Mall, restaurants, and a Tri-Star Emergency center. Parks and recreation are abundant in this area, including Mill Creek Park, Owl Creek Park, Cane Ridge Disc Golf, and Ford Ice Center. Shops at Lenox Village and the Nolensville community are within 3 miles! Set in a picturesque, countryside-inspired environment, the community is tailored for active adults and features amenities such as a pavilion with an event lawn, two pickleball courts, and a scenic walking trail, and miles of sidewalks. Builder incentives available. Restrictions apply. Contact sales agent for details.
Listed By
Agency Name: Ashton Nashville Residential
Agency Phone: 6154990442
Shown By
Agency Title: Crye-Leike Real Estate Services
Agency Phone: 866-253-4666
Estimated Payment
$ 1,642.17 per month $1,152.54 Principal & Interest $338.58 Property Tax $151.04 Homeowner's Insurance
2840 Bison Ct | MLS# 3136926
This single family home located at 2840 Bison Ct , Antioch, TN 37013 is currently listed for sale with an asking price of $517,865. This property was built in 2025 and has 5 bedrooms and 3 full baths with 2368 sq. ft. Bison Ct is located in the Cedars of Cane Ridge subdivision. Search Cedars Of Cane Ridge real estate on www.clcommercialrealestate.com today.