
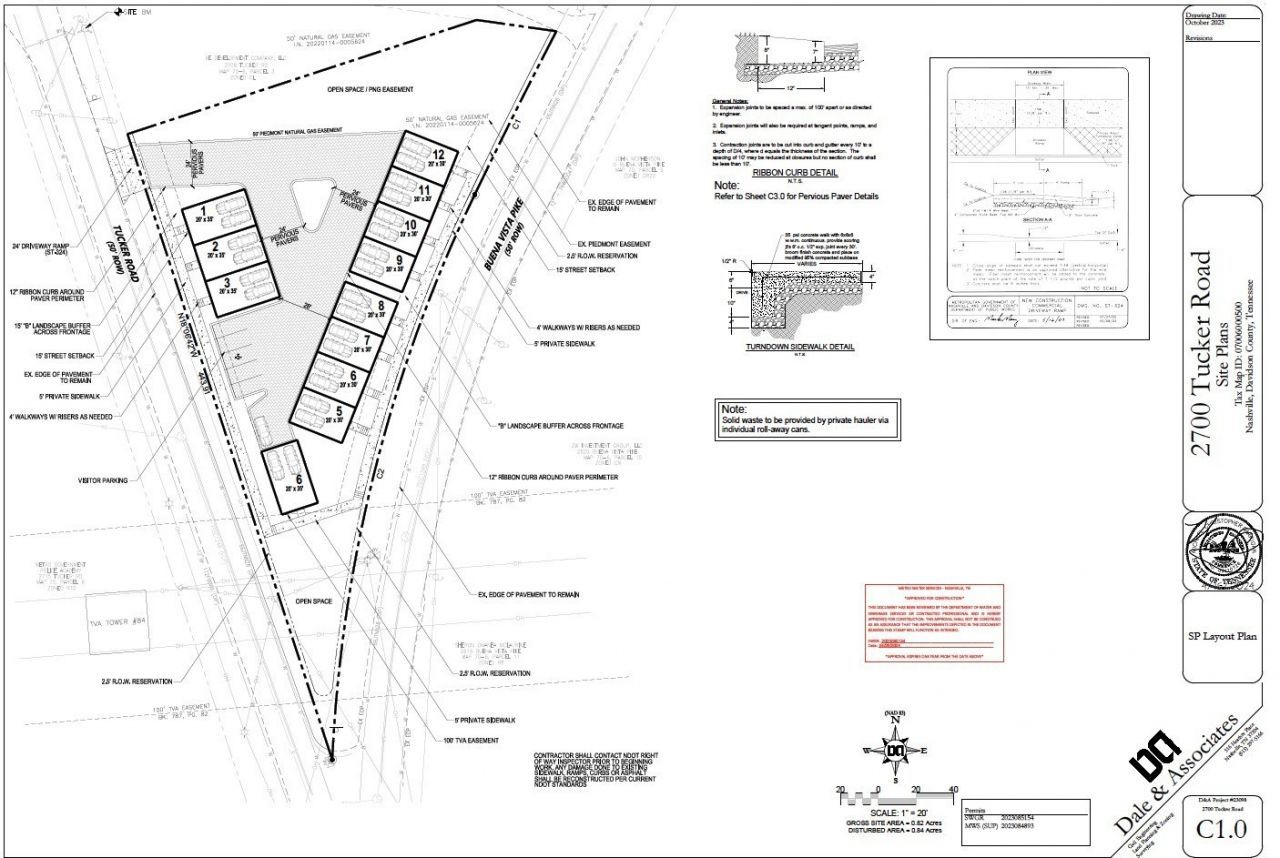
Fantastic corner Commercial Development Site for sale. Near Full 1-Acre Commercial-CL off booming W Trinity Ln Main Corridor. Approved and Shovel Ready for a 12-Unit STR EligibleTownhome Development, complete with Full Plans, Renders and Full Architecture included in sale! Existing Bar / Restaurant Building and Residential Rental Home on site - combined 3500 sq ft of space - that can be rehabbed or refitted for your commercial needs. Perfect for Developer looking for next ready to go shovel ready project; Buy and Hold Investor, Section 1031 Exchange; Investor looking for new commercial space or land with tons of flexibility and possibilities. Only 8-minutes from Downtown; the new Oracle Development; minutes from Germantown; East Nashville; West Nashville. All utilities at the street - Water, Gas, Electric - and ready to go. Flat site, minimal grading. Excellent site and location. Tons of options and possibilities. All Diligence and Materials available for review. Reach out to Agent with all questions. BRING ALL OFFERS. Owner / Agent. Taxes to be determined.
Listed By
Agency Name: eXp Realty
Agency Phone: 8885195113
Shown By
Agency Title: Crye-Leike Real Estate Services
Agency Phone: 866-253-4666
Estimated Payment
$ 2,789.97 per month $2,169.93 Principal & Interest $335.67 Property Tax $284.38 Homeowner's Insurance
2700 Tucker Rd | MLS# 3129446
This land located at 2700 Tucker Rd , Nashville, TN 37218 is currently listed for sale with an asking price of $975,000. The property has approximately 0.82 Acres. Search Nashville real estate on www.clcommercialrealestate.com today.