
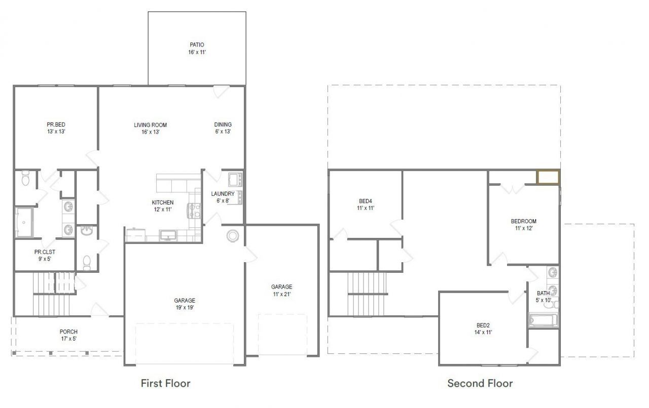
PRIMARY ON MAIN! 3 bedrooms up, flex space, covered back patio, designated dining space AND THREE CAR GARAGE! The Franklin is over 2,200 SF of perfectly arranged bedrooms and storage, with stunning natural lighting and a kitchen deserving of a chef's kiss! Step out on your covered front porch and enjoy a glass of sweet tea, or step into your backyard oasis, with tree-line privacy and great distance from your neighbors! Home is move in ready! 48 Hour First Right Of Refusal In Place.
Listed By
Agency Name: Legacy South Brokerage
Agency Phone: 6155514505
Shown By
Agency Title: Crye-Leike Real Estate Services
Agency Phone: 866-253-4666
Estimated Payment
$ 1,206.12 per month $823.24 Principal & Interest $275.00 Property Tax $107.89 Homeowner's Insurance
2289 Lopez Ct | MLS# 3137382
This single family home located at 2289 Lopez Ct , Cookeville, TN 38506 is currently listed for sale with an asking price of $369,900. This property was built in 2025 and has 4 bedrooms and 2 full and 1 partial baths with 2276 sq. ft. Lopez Ct is located in the The Reserve subdivision. Search The Reserve real estate on www.clcommercialrealestate.com today.