
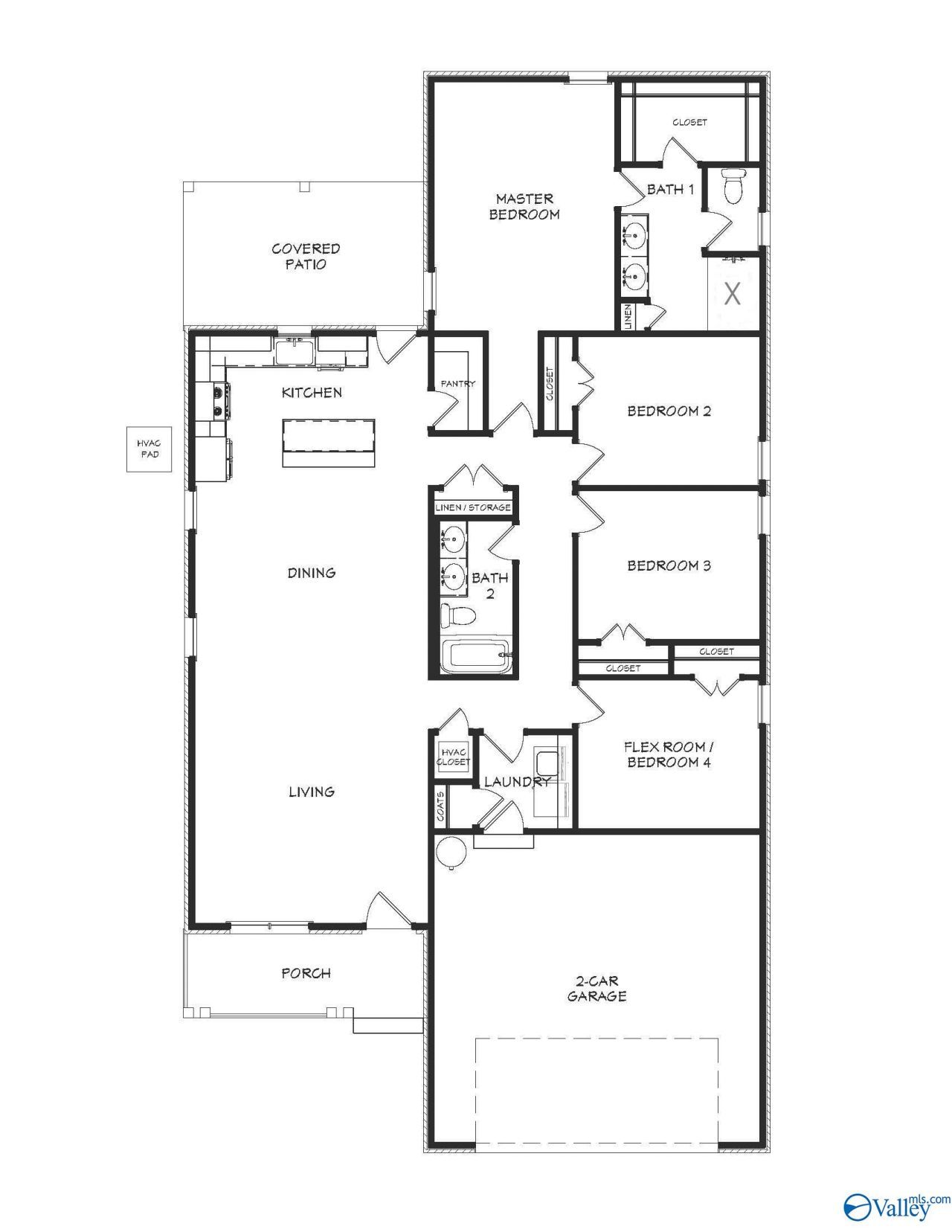
Model Home not for sale-We believe that finding your dream home is not just a goal; it's a delightful journey that opens the door to endless possibilities! Let's start in Foster Place where quality & value meet in a peaceful setting. Langston Plan, 4-bdrm 2 bath home, a beautiful full brick exterior & open living space. Master has a 5' tile shower, double vanities, framed mirrors, ceiling fan. Kitchen w/shaker cabinets, large center island w/beautiful pendant lighting, trash pull out, culinary faucet, open living & dining room, & finishes up w/lg rear covered patio w/space for family & friends. Ready to explore your options? Dive in & discover how we can turn your dream in
Listed By
Agency Name: Breland Homes LLC
Shown By
Agency Title: Crye-Leike Real Estate Services
Agency Phone: 866-253-4666
Estimated Payment
$ 909.48 per month $804.10 Principal & Interest $0.00 Property Tax (data not provided by mls) $105.38 Homeowner's Insurance
215 Emma Circle | MLS# 21902678
This single family home located at 215 Emma Circle, Triana, AL 35756 is currently listed for sale with an asking price of $361,300. This property has 4 bedrooms and 2 full baths with 1844 sq. ft. Emma Circle is located in the Foster Place subdivision. Search Foster Place real estate on www.clcommercialrealestate.com today.