
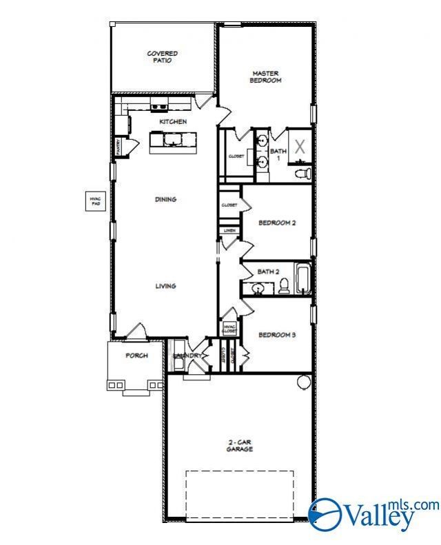
Under Construction-We believe that finding your dream home is not just a goal; it's a delightful journey that opens the door to endless possibilities! Let' start in Foster Place where quality & value meet in a peaceful setting. You can't go wrong w/this cutie-The Bluefield, 3/2 has a brick exterior & lg covered rear patio. The large open living space leads to a spacious dining room. On to the kitchen w/shaker cabinets, lg center island w/beautiful pendant lighting, trash pull out, culinary faucet, soft close doors & drawers. Master has a 5' tile shower, double vanities, framed mirrors, ceiling fan & walk-in closet. Ready to explore your options? Dive in & discover how we can turn your dream
Listed By
Agency Name: Breland Homes LLC
Shown By
Agency Title: Crye-Leike Real Estate Services
Agency Phone: 866-253-4666
Estimated Payment
$ 762.47 per month $674.12 Principal & Interest $0.00 Property Tax (data not provided by mls) $88.35 Homeowner's Insurance
201 Emma Harris Circle | MLS# 21902422
This single family home located at 201 Emma Harris Circle, Triana, AL 35756 is currently listed for sale with an asking price of $302,900. This property has 3 bedrooms and 2 full baths with 1457 sq. ft. Emma Harris Circle is located in the Foster Place subdivision. Search Foster Place real estate on www.clcommercialrealestate.com today.