
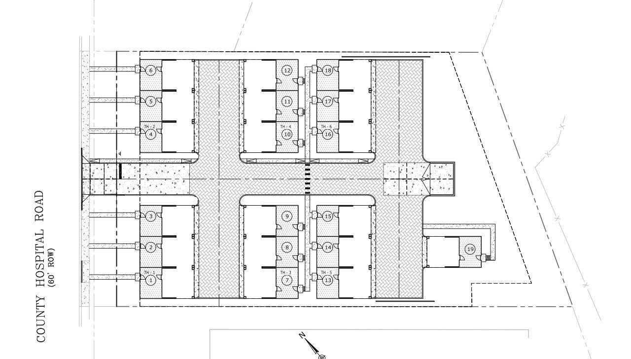
Selling Fully Entitled Infill Development site for 19 Units, 1.1 Acre Zoned CS on major and collector, NOO-STR Eligible in North Nashville / Bordeaux. Excellent Site. Complete with Full Engineering, W/S Capacities, Stamped and Approved Grading and Utility Plans, full Architectural Plans. Minutes from Downtown and the City's best attractions and amenities. Grandfathered Private Sewer, Gravity Tap in Rear, Water in Street, Minimum Grading, Simplified Utilities. Build 1800 sqft 4 Bed / 3.5 bath units for <$140 a ft Vertical + $55k a pad horizontal. Guaranteed unobstructed Downtown and Scenic Views. Multiple uses. Very flexible commercial service zoninf. Bring all Offers. Please reach out with any questions. Docs and Project Folder Link in Media Section. Owner / Agent. Taxes to be Determined.
Listed By
Agency Name: eXp Realty
Agency Phone: 8885195113
Shown By
Agency Title: Crye-Leike Real Estate Services
Agency Phone: 866-253-4666
Estimated Payment
$ 3,791.15 per month $3,227.07 Principal & Interest $141.17 Property Tax $422.92 Homeowner's Insurance
1610 County Hospital Rd | MLS# 3050236
This land located at 1610 County Hospital Rd, Nashville, TN 37218 is currently listed for sale with an asking price of $1,450,000. The property has approximately 1.10 Acres. Search Nashville real estate on www.clcommercialrealestate.com today.