
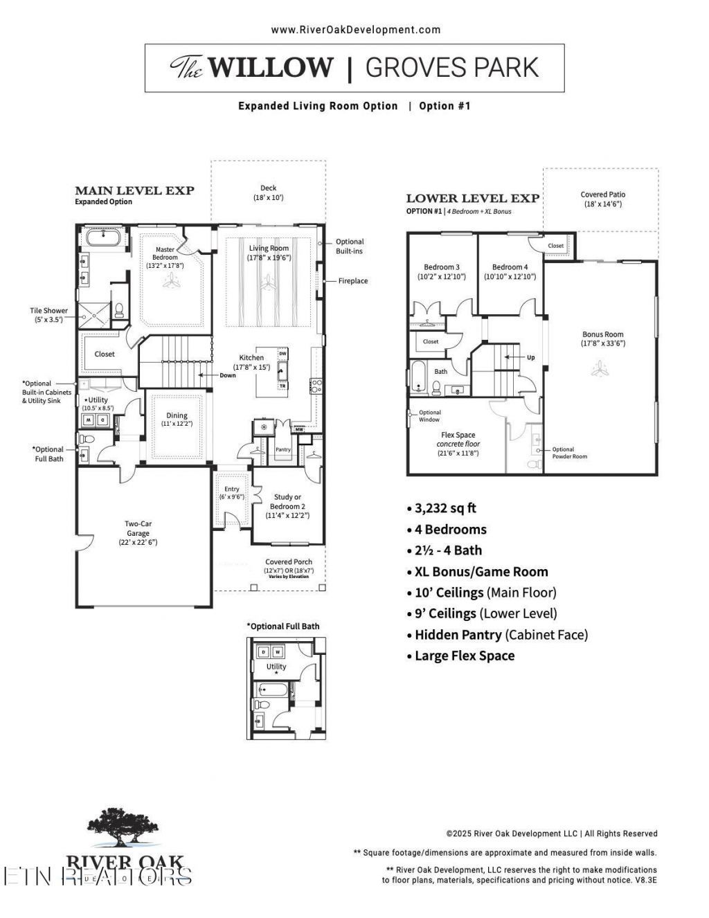
NEW CONSTRUCTION with plenty of high end upgrades! Home to be completed in Feb. 2026. Home built by River Oak Development, LLC in the Groves Park subdivision. There are additional lots available for this Willow floor plan (4 different exterior elevation options). Please contact the listing agent for more information. The Willow floor plan is a stunning two-story walkout home offering a perfect blend of modern elegance and functional living. This home features a main floor master suite and designer touches throughout. As you step into the grand foyer, you'll be immediately captivated by the abundance of natural light pouring in from the expansive windows and high ceilings. With 10-foot ceilings and 8-foot doors on the main level, the home feels open and airy throughout. The gourmet kitchen is a chef's dream, offering a large island with soft-close wood cabinets, hidden pantry, pot filler, spice rack, built-in artisan range hood, GE Profile appliances (including gas stove) as well as many other features that make cooking both stylish and functional. Designer touches are found throughout the home including floor to ceiling fireplace, 5 1/4 inch baseboards, 4-way wrap designer window trim with stool and apron, and multiple custom ceiling treatments. The main level laundry features a wall of customer cabinets, quartz countertops and a sink. The premium bathrooms provide a tru spa-like experience. The master suite features a customer tiled shower with linear drain and frameless glass doors, dual vanities with designer-framed mirrors and freestanding soaking tub. This floor plan features two porches and a generously sized balcony off of the great room; perfect for taking in the views. With a wood ceiling, Timbertech decking and ceiling fan, it's ideal for relaxing after a long day. The large, flat, fenced in rear yard provides an amazing setting for creating memories with family and friends. This home is equipped with smart technology for added convenience and comfort. The tankless gas water heater ensures the luxury of unlimited hot water. Groves Park is a beautiful neighborhood in the heart of Oak Ridge within a highly rated school district (in 2024 the elementary school received the national blue ribbon award). With its tree lined streets, charming details and future planned premium amenities, it's the perfect place to call home.
Listed By
Agency Name: Alliance Sotheby's International
Shown By
Agency Title: Crye-Leike Real Estate Services
Agency Phone: 866-253-4666
Estimated Payment
$ 1,947.44 per month $1,721.79 Principal & Interest $0.00 Property Tax (data not provided by mls) $225.65 Homeowner's Insurance
132 Oppenheimer Way | MLS# 1326325
This single family home located at 132 Oppenheimer Way, Oak Ridge, TN 37830 is currently listed for sale with an asking price of $773,641. This property has 4 bedrooms and 3 full and 1 partial baths with 3232 sq. ft. Oppenheimer Way is located in the Groves Park Commons subdivision. Search Groves Park Commons real estate on www.clcommercialrealestate.com today.