
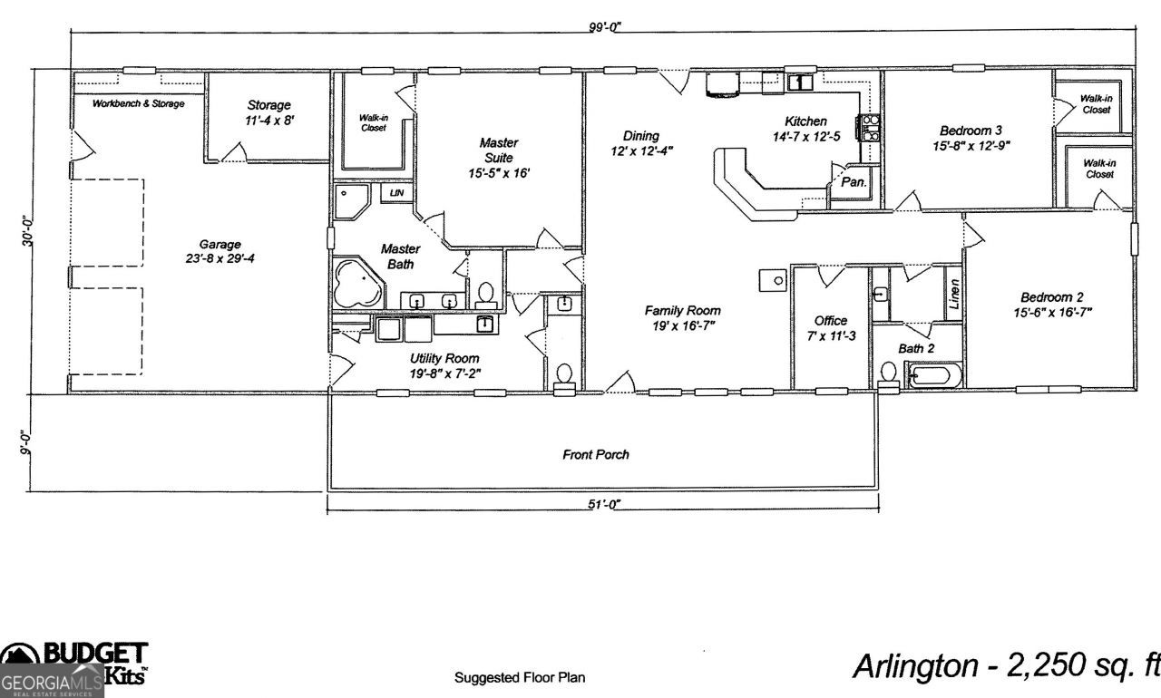
9.38 wooded acres with Barndominium construction started. Foundation poured with a 9' x 51' front porch slab, plumbing rough-ins completed, red-iron beams installed, 1,500-gallon septic tank in place, and construction power on site. The Arlington floor plan Barndominium kit (2,250 heated sq ft plus a 2-car side-entry garage with space for a workbench and storage) was purchased from Budget HomeKits and is on site. The package is designed to complete the exterior shell and includes interior metal studs. The manufacturer provides a detailed assembly guide, real-time consultation support, and options for plan or order modifications if desired. Exterior color selections include Buckskin Tan walls, a Galvalume roof, Polished Slate jamb trim, and coordinating trim to complement the roof and wall colors. The purchase also includes a powered storage building and a 40-foot shipping container. Several fixtures are on site and included: a wood stove, garage doors, windows, doors, and select special-order items, including a 60 x 36 flip-out/up kitchen window. An existing bored well is on the property, though the sellers had intended to drill a new well. A well company has previously confirmed the presence of a water table on site. Conveniently located with easy access to U.S. Route 441 and Interstate 85, as well as nearby shopping and restaurants. Shown by appointment only.
Listed By
Agency Name: Howington Realty Company
Agency Phone: 706-713-6510
Shown By
Agency Title: Crye-Leike Real Estate Services
Agency Phone: 866-253-4666
Estimated Payment
$ 959.20 per month $778.95 Principal & Interest $78.17 Property Tax $102.08 Homeowner's Insurance
1183 Wilson Bridge Road | MLS# 10701272
This land located at 1183 Wilson Bridge Road, Homer, GA 30547 is currently listed for sale with an asking price of $350,000. The property has approximately 9.38 Acres. Search Homer real estate on www.clcommercialrealestate.com today.