
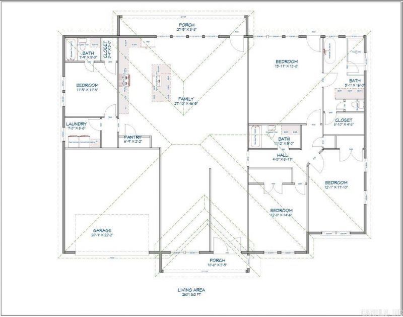
Custom Build Your Dream Home in CHENAL VALLEY! This proposed floor plan offers 4 spacious bedrooms, 2.5 or 3 bathrooms and approximately 2,600 sq. ft. of luxury living ??? all thoughtfully designed with high ceilings, a modern kitchen, and all bedrooms on the main floor. Located in the prestigious Chenal Valley neighborhood of West Little Rock, this is your opportunity to customize every detail and watch your dream home come to life. Enjoy a prime location, upscale finishes, and the rare chance to be involved from blueprint to completion. Don???t just buy a home ??? build the one you???ve always envisioned!
Listed By
Agency Name: Epique Realty
Agency Phone: 858-893-3537
Shown By
Agency Title: Crye-Leike Real Estate Services
Agency Phone: 866-253-4666
Estimated Payment
$ 1,541.09 per month $1,001.50 Principal & Interest $408.33 Property Tax $131.25 Homeowner's Insurance
105 Chalamont Cove | MLS# 25049503
This single family home located at 105 Chalamont Cove, Little Rock, AR 72223 is currently listed for sale with an asking price of $450,000. This property was built in 2025 and has 4 bedrooms and 3 full baths with 2600 sq. ft. Chalamont Cove is located in the CHENAL VALLEY CHALAMONT PLACE subdivision. Search CHENAL VALLEY CHALAMONT PLACE real estate on www.clcommercialrealestate.com today.